ARQUITETURA

 

 

 

 

O Nu atua com concepção de projeto arquitetônico, de mobiliário, projeto executivo e projetos complementares. Para garantir a qualidade dos serviços, todas as etapas de projeto e apresentações de desenhos 2D, 3D e renderes são realizadas pela mesma equipe que coordena a execução dos projetos. 

 

 

 

 

 

025
COZINHA
LOURENÇO
DE ALMEIDA

 

arquitetura e obra

 

 São Paulo  |  SP  |  2016  |  área: 57m²  |  tempo de obra: 6 meses  
 

Concepção, projeto executivo, projeto luminotécnico, de paisagismo e de mobiliário para reforma em sobrado residencial com nova área de serviço para ampliação de cozinha e integração com quintal. Coordenação de fornecedores e gerenciamento de obra também realizados pelo Nu Arquitetura.

 

 

#bancadasinox #cozinhacomilha #hortaemcasa #paineldezulejos #porcelanatomaciço #projetoexclusivo #armáriossobmedida

 

 

 

 

 

 

XXX
APARTAMENTO CESÁRIO MOTA

 

arquitetura e obra

 

 São Paulo  |  SP  |  2013  |  área: 107m²  |  tempo de obra: 7 meses  
 

Concepção, projeto executivo, projeto luminotécnico,

de paisagismo e de mobiliário para reforma de apartamento

com abertura de cozinha e conversão de quarto em sala de

jantar. Coordenação de fornecedores e gerenciamento de

obra também realizados pelo Nu Arquitetura.

 

 

#estruturaaparente #cozinhaaberta #chãodetaco #granitopreto
#projetoexclusivo #armáriossobmedida #porcelanatomaciço

 

 

 

025b
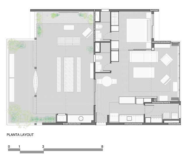
APARTAMENTO
CAMPINAS

 

arquitetura e obra

 

 São Paulo  |  SP  |  2021  | área: 96m² 
 tempo de obra: 2 meses  
 

Concepção, projeto executivo e projeto luminotécnico para reforma de apartamento residencial.

 

Coordenação de fornecedores e gerenciamento de obra também realizados pelo Nu Arquitetura.

 

 

 

#ladrilhohidráulico #paisagismo #fechamentodevaranda #marcenariabanheiro #projetoexclusivo #armáriossobmedida

 

 

 

 

 

 

000
CASA
JANUÁRIO
CARDOSO

 

arquitetura e obra

 

 São Paulo  |  SP  |  2013 - 2014  | área: 140m² internos + 140m² externos  
 tempo de obra: 13 meses  
 

Concepção, projeto executivo, luminotécnico, de caixilharia e de mobiliário para construção de sobrado residencial. Coordenação de fornecedores e gerenciamento de obra também realizados pelo Nu arquitetura.

Projeto feito em parceria com a arquiteta Gabriela Baraúna. Projeto de paisagismo concebido e executado em parceria com o cliente.

 

#mármorerosa #cozinhacomilha #hortaemcasa #chapiscoaparente #jardimdeinverno #iluminaçãozenital #projetoexclusivo 

 

 

 

 

 

 

052
APARTAMENTO
PAULO VIEIRA

 

arquitetura e obra

 

 São Paulo  |  SP  |  2018  | área: 100m² internos + 32m² externos  
 tempo de obra: 5 meses  
 

Concepção, projeto executivo, projeto luminotécnico, de paisagismo e de mobiliário para reforma de apartamento residencial recém entregue pela construtora. Coordenação de fornecedores e gerenciamento de obra também realizados pelo Nu Arquitetura.

 

 

 

 

#ladrilhohidráulico #paisagismo #fechamentodevaranda #marcenariabanheiro #projetoexclusivo #armáriossobmedida

 

 

 

 

 

 

010
APARTAMENTO MELO ALVES

 

arquitetura e obra

 

 São Paulo  |  SP  |  2015  |  área: 82m²  |  tempo de obra: 7 meses  
 

Concepção, projeto executivo, projeto luminotécnico,

de caixilhos e de mobiliário para reforma de apartamento

residencial com ampliação da área social e reestruturação

de cozinha e banheiro. Coordenação de fornecedores e

gerenciamento de obra também realizados pelo Nu Arquitetura.

 

 

#bancadasdegranilite #cozinhaaberta #chãodetaco #granilite
#projetoexclusivo #armáriossobmedida #ladrilhohidráulico

 

 

 

 

00101
APARTAMENTO
SERGIPE

 

arquitetura e obra

 

 São Paulo  |  SP  |  2014  |  área: 260m²  |  tempo de obra: 8 meses  
 

Concepção, projeto executivo, projeto luminotécnico, de paisagismo e de mobiliário para reforma de apartamento residencial. Coordenação de fornecedores e gerenciamento de obra também realizados pelo Nu arquitetura.

 

 

 

 

 

 

#edifíciomodernista #granilite #chãodetaco #granitopreto #projetoexclusivo #armáriossobmedida #porcelanatomaciço

 

 

 

 

 

 

023
QUITINETE
MARTINS
FONTES

 

arquitetura e obra

 

 São Paulo  |  SP  |  2016  |  área: 30m²  |  tempo de obra: 3 meses  
 

Concepção, projeto executivo, projeto luminotécnico e de mobiliário para reforma de quitinete residencial com criação de closet e cozinha integrada à área social, conversível em dormitório. Coordenação de fornecedores e gerenciamento de obra também realizados pelo Nu arquitetura.

 

 

#ladrilhohidraulico #cozinhaaberta #chãodetaco #granitopreto #projetoexclusivo #armáriossobmedida

 

 

 

 

 

 

004
COBERTURA
AUGUSTO
PENTEADO

 

arquitetura e obra

 

 São Paulo  |  SP  |  2015  | área: 60m² internos + 60m² externos  
 tempo de obra: 8 meses  
 

Concepção, projeto executivo, projeto luminotécnico, de paisagismo e de mobiliário para reforma de cobertura residencial recém entregue pela construtora. Coordenação de fornecedores e gerenciamento de obra também realizados pelo Nu arquitetura.

 

 

#tacão #paisagismo #chãodetaco #duchaexterna #açocarbono #compensadoaparente #projetoexclusivo #armáriossobmedida